El Ayuntamiento de Lucena ha adjudicado las obras de construcción del nuevo bar-cafetería de la Ciudad Deportiva, de esta manera se refuerza la oferta de servicios en este complejo municipal y responde a las necesidades detectadas entre los miles de usuarios anuales.
Tres empresas han concurrido al proceso, siendo la adjudicataria el Grupo Agropareferma SL por un importe que supera los 70 mil euros.
El proyecto, que salió a licitación por segunda vez el mes pasado por un presupuesto base de 90.120 euros iva incluido, conforme al expediente publicado en la Plataforma de Contratación del Sector Público, ha recibido un total de tres ofertas, resultando seleccionado la presentada por el Grupo Agroparefema S.L., con un importe final de 83.813 euros.
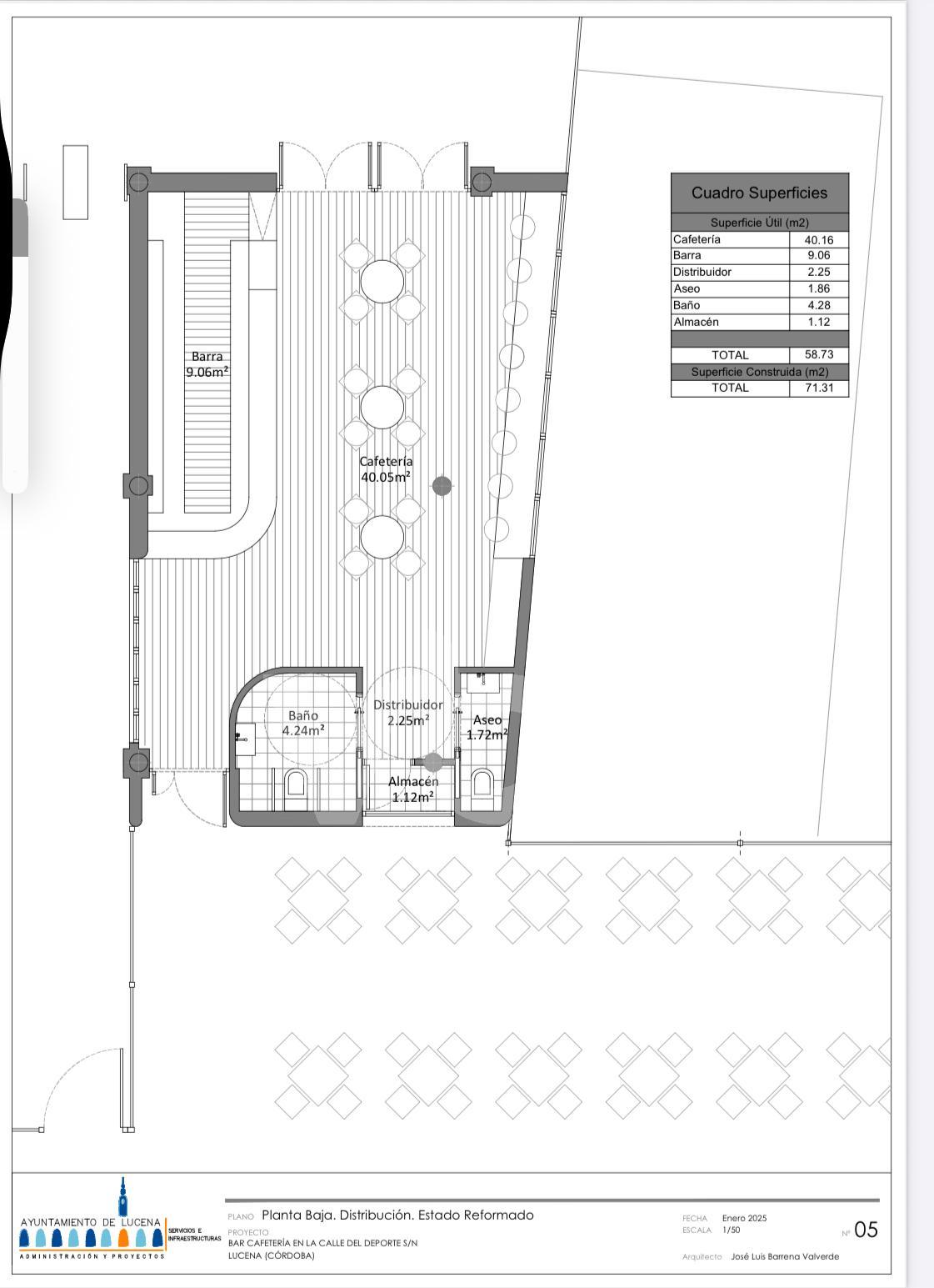
El nuevo espacio se ubicará en la entrada principal de la Ciudad Deportiva y contará con 80 metros cuadrados de superficie interior, con capacidad para cinco mesas y hasta veinte comensales, además de una terraza exterior con doce mesas y capacidad para 48 personas. La actuación incluye criterios de accesibilidad universal, sistemas de eficiencia energética, iluminación LED y aislamiento sostenible, alineándose con los estándares de mejora previstos para este complejo deportivo municipal.
Desde el Ayuntamiento de Lucena se prevé la formalización del contrato en los próximos días, lo que permitirá iniciar las obras conforme al plazo de ejecución establecido en el expediente.


