El Ayuntamiento de Lucena ha adjudicado las obras de construcción del nuevo bar-cafetería de la Ciudad Deportiva, de esta manera se refuerza la oferta de servicios en este complejo municipal y responde a las necesidades detectadas entre los miles de usuarios anuales.
Tres empresas han concurrido al proceso, siendo la adjudicataria el Grupo Agropareferma SL por un importe que supera los 70 mil euros.
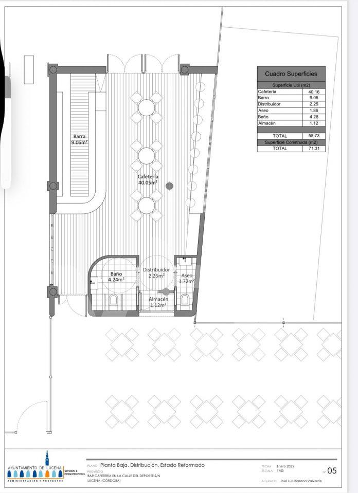
El proyecto, que salió a licitación por segunda vez el mes pasado por un presupuesto base de 90.120 euros iva incluido, conforme al expediente publicado en la Plataforma de Contratación del Sector Público, ha recibido un total de tres ofertas, resultando seleccionado la presentada por el Grupo Agroparefema S.L., con un importe final de 83.813 euros.
El nuevo espacio se ubicará en la entrada principal de la Ciudad Deportiva y contará con 80 metros cuadrados de superficie interior, con capacidad para cinco mesas y hasta veinte comensales, además de una terraza exterior con doce mesas y capacidad para 48 personas. La actuación incluye criterios de accesibilidad universal, sistemas de eficiencia energética, iluminación LED y aislamiento sostenible, alineándose con los estándares de mejora previstos para este complejo deportivo municipal.
Desde el Ayuntamiento de Lucena se prevé la formalización del contrato en los próximos días, lo que permitirá iniciar las obras conforme al plazo de ejecución establecido en el expediente.









I’ll definitely come back and read more of your content.
I never thought about it that way before. Great insight!
98WIN là điểm đến lý tưởng cho những người yêu thích cá cược minh bạch và xanh chín. Nền tảng gây ấn tượng mạnh với giao diện mượt mà, tốc độ rút tiền nhanh, cùng hàng loạt khuyến mãi giá trị được cập nhật liên tục. Tất cả tạo nên một môi trường giải trí trọn vẹn trong một hệ thống duy nhất.
I appreciate how genuine your writing feels. Thanks for sharing.
Posts like this are why I keep coming back. It’s rare to find content that’s simple, practical, and not full of fluff.
Tại QQ88, người chơi được hòa mình vào hệ sinh thái giải trí đa tầng với hàng loạt trò chơi đỉnh cao như casino trực tuyến, nổ hũ, thể thao và bắn cá 3D. Lấy phương châm “uy tín – minh bạch – chuyên nghiệp”, QQ88 liên tục nâng cấp công nghệ, dịch vụ và ưu đãi nhằm mang đến trải nghiệm an toàn, công bằng và đầy hứng khởi cho cộng đồng thành viên.
Thank you for putting this in a way that anyone can understand.
Thanks for sharing your knowledge. This added a lot of value to my day.